By allowing ads to appear on this site, you support the local businesses who, in turn, support great journalism.
Rincon Approves Concept for Assisted Living Facility
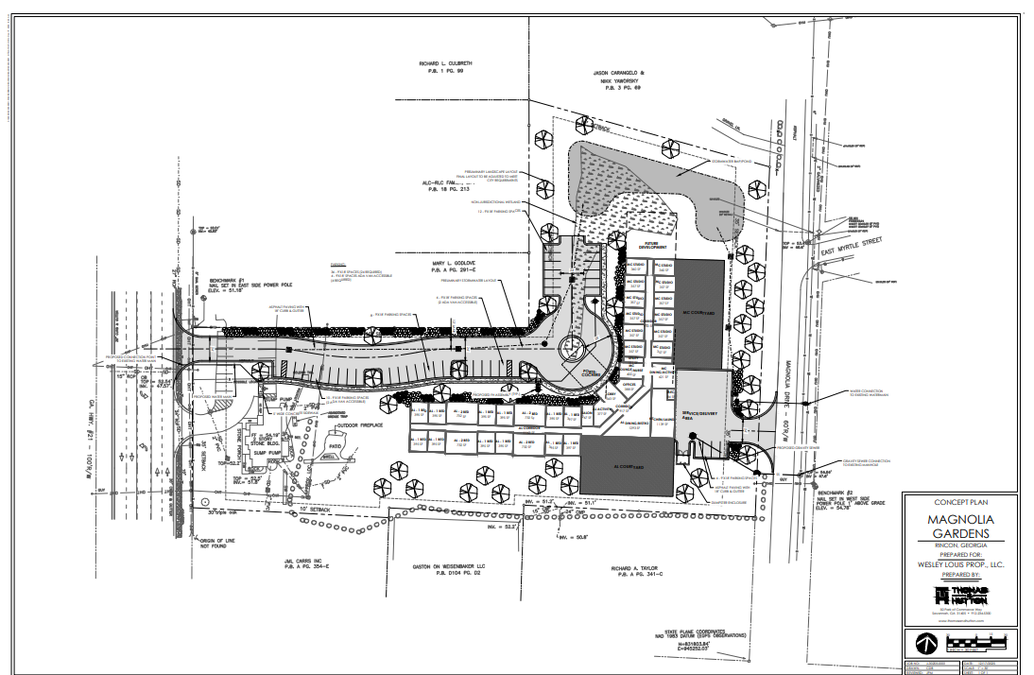
Magnolia Gardens
This is a conceptual site plan for Magnolia Gardens, a 28-room assisted living and memory care facility planned for 290 S. Columbia Drive in Rincon. The plan was reviewed and approved conceptually by the city council Jan. 27, but it has not yet received final approval.

RINCON, Ga. — The Rincon City Council has approved a conceptual site plan for Magnolia Gardens, a 20,000-square-foot assisted living and memory care facility that would become the city’s first senior living center of its kind.

The one-building facility is planned for 290 S. Columbia Drive, behind the Old Stone House and across from Dunkin’ off State Route 21. It would include 28 total rooms, with 12 memory care rooms and 16 assisted living rooms. If ultimately approved, the facility is scheduled to open in spring 2027.

“This is a one-building layout, upscale assisted living facility,” said Tiffany Edwards, co-owner of Wesley Louise Properties. “Residents will privately pay.”

Edwards and her cousin, Alan Skipper, are developing the project. Skipper owns The Gardens, an assisted living facility in Statesboro.

Conceptual review, not final approval

The agenda item approved by the council Jan. 20 was for a conceptual site plan review, not a final approval of the project. Mayor Pro Tem Mona Underwood said Magnolia Gardens would be Rincon’s first assisted living and memory care facility.

Memory care is a specialized form of senior housing that provides 24-hour supervision, structured activities and enhanced security for residents with Alzheimer’s disease, dementia and other cognitive impairments.

Growing need for senior services

Edwards said the need for assisted living and memory care services in the region is significant.

“The closest opening for an assisted living facility near Rincon is in Milledgeville, which is more than two hours away,” Edwards said. “Facilities everywhere — Savannah, Pooler, Statesboro — have a waiting list. There is such a need for this, especially for memory care.”

The only assisted living facility currently located in Effingham County is Lakeview Manor Senior Living in Springfield, which has 22 beds.

Councilwoman Trisha Boyett said her support for the project is rooted in personal experience with Alzheimer’s disease.

“I lost my father, grandmother and aunt to Alzheimer’s, and my father-in-law is currently battling this disease,” Boyett said. “As someone who has experienced memory care within my own family, I understand how important these conversations are as our community grows and families often have to look outside the area for these services.”

Community impact

 Underwood said the project represents a major investment in the city’s future.

“This new assisted living and memory care facility represents a significant investment in Rincon’s future,” Underwood said. “Beyond providing excellent services for seniors, this project will create new jobs and contribute to the overall growth and vitality of our community.”

Next steps

The next step in the approval process will be the Development Plan Review, which constitutes final approval. Developers will submit detailed civil plans — including erosion control, drainage and utilities — for review by city staff and the city’s contracted engineer, Teri Lewis, Rincon’s planning and development director, said.